Plans submitted for 180 houses in village on South Staffordshire border
Plans have come forward to build 180 houses on the edge of a village in South Staffordshire. The scheme involves building the houses on some of the ‘best and most versatile agricultural land’ in Perton.
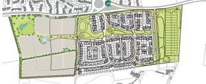
The development would continue the Wrottesley Village scheme, which is in its final stage of delivery. Located off Wrottesley Park Road, access to the new neighbourhood will be from the village scheme, however emergency access will be available from Wrottesley Park Road.
The site has been allocated for a minimum of 150 houses in the South Staffordshire Council’s draft local plan. However the developer states given the council can’t currently evidence a five year housing land supply, would be ‘appropriate’.
The development will provide 30 per cent affordable housing split equally between shared ownership and social housing. It is also proposed that 10 per cent of the total number of homes be bungalows to support older people and those with specialist requirements, however, exact details will be finalised later in the planning process with a reserved matters application.
The application also proposed a number of financial contributions including to education, local sports facilities and health infrastructure. The applicant has also proposed a number of changes to highways in the vicinity of the site.

These include a new toucan crossing at the roundabout on Wrottesley Park Road, a reduction in the speed limit to 30mph, and new bus stops. The exact details on contributions will not be finalised until statutory consultees respond to the plans.
The design and access statement said: “Our vision is to create a pleasant and attractive residential neighbourhood, that will integrate seamlessly with Wrottesley Village to the south, building on the movement, landscape and morphological patterns that have been successfully established.
“The development will deliver high quality green infrastructure that connects directly into land to the south and beyond, creating an enhanced provision for existing residents as well as those moving into this part of the neighbourhood. A diverse mix of house types and tenures will be delivered, which will reflect local needs and help foster the creation of a diverse and sustainable community.”
The application and all supporting documents can be viewed on South Staffordshire Council’s planning portal under reference number 25/00839/OUTM. Public comments on the application can be made until 15 November. The application is currently under consideration by planning officers.





