400 new homes planned for farmland east of Cannock
Up to 400 new homes have been proposed for farmland east of Cannock.
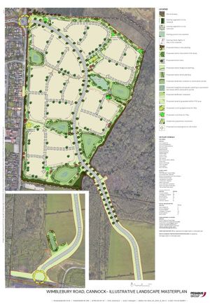
Housebuilder Taylor Wimpey has submitted a planning application to Cannock Chase District Council for the development on land east of Wimblebury Road, Heath Hayes.

The developer is seeking outline consent for up to 400 homes alongside amenity areas, landscaping, parking, drainage basins and other associated infrastructure. If the proposals are approved further application covering details including house types, design and layout would come forward at a later date.
The current application also requests permission for vehicle accesses onto Wimblebury Road and Cannock Road, as well as works to enable the creation of a Wimblebury Road Relief Road. A statement on Taylor Wimpey’s Wimblebury Road website said: “We have been working with Cannock Chase District Council and Staffordshire County Council to undertake extensive transport modelling and assessments to forecast the impact on the local road network of this development and other allocations in the emerging Local Plan
“To mitigate any potential impact on the Five Ways roundabout, the new Wimblebury Road Relief Road (WRRR) will provide a better alternative for many trips currently passing through Five Ways, including all those travelling between Wimblebury Road and the A5190E and some of those heading between Hednesford Road and the A5190E. Traffic modelling has shown that the Wimblebury Road Relief Road (WRRR) will ensure that there is no worsening of traffic at Five Ways caused by residential development."





