86 new homes planned for Staffordshire village
More than 80 new homes are earmarked for land in Hixon – and former hospital buildings are set to be demolished if the plans are given the green light.
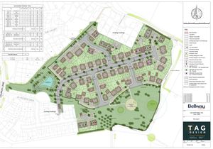
Bellway Homes is seeking permission to develop a 4.10 hectare (10.1 acre) site between Church Lane and Egg Lane.
Get the latest headlines delivered straight to your inbox with the Express & Star’s free newsletter

The site is predominantly open agricultural land, with former hospital buildings to the south west. These would be demolished to make way for the new development, which would include 86 homes, public open space and attenuation ponds.
Planning permission was previously granted in September 2015 to change the use of the former Second World War hospital building to community uses, health facilities, retail use and offices. But this consent was never implemented and the permission has now lapsed, a planning statement submitted as part of the latest application said.
It added: “The site is located in a sustainable position, with key routes providing excellent accessibility to the wider area. Bus stops are within walking distance, offering direct links to Stafford and surrounding settlements.
“Six dwellings are to be served off the end of St Peters View to the east with the majority of dwellings (80) to be served off St Peters View to the north; an emergency access point from Egg Lane is also proposed. Pedestrian connectivity would be provided via Church Lane and Egg Lane to provide good connection to the wider network.
“The proposed layout would deliver a mixture of open market and affordable homes – 30% – to reflect the needs in Stafford. As a result, the mix of 60 market and 26 affordable housing would contribute favourably to the supply of housing.
“The proposed dwellings would be predominantly two-storey detached, semi-detached and terraced properties including four maisonettes (ground and first floor accommodation). Each dwelling would be provided with a good standard of amenity for future residents with its own private garden – the majority of private garden space either accords or exceeds local planning policy requirements.
“Car parking and cycle parking provision is provided in accordance with local guidance. Each dwelling would be provided with an electric vehicle charging point.”
“Tree loss would be limited, with the objective of retaining as far as possible the higher quality trees, which includes (a) veteran oak tree and mature oak tree. Replacement planting would be provided to mitigate loss, as part of an overall BNG (biodiversity net gain) strategy seeking a net gain.”
You can find out more about planning applications and planned roadworks where you live. Visit publicnoticeportal.uk





