Consultation launched on scheme for 145 new homes in South Staffordshire
A house-builder has launched a consultation website asking residents for feedback on plans for new high-quality homes set amongst landscaped open spaces in Coven.
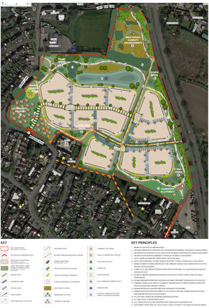
The proposed new neighbourhood of net zero carbon ready homes built by Bloor Homes would be located at Grange Farm, to the east of School Lane and the north side of Brewood Road in the village.

The site is surrounded by existing village development to the north, west and south, while the A449 Stafford Road forms the eastern boundary.
An outline planning application is being prepared based on the site’s sustainable infill location, close to village facilities and will be submitted after consultation with residents.
If approved, it would see around 145 high-quality new homes built to the latest standards of sustainability and energy efficiency , with 50 per-cent of them being affordable in line with grey belt policy introduced by the government in the National Planning Policy Framework.
Existing mature trees and the majority of hedgerows on the site will be retained where possible and augmented with extensive additional planting, significantly increasing tree cover across the site.
Areas of landscaped green public open space will incorporate new walking and cycling routes, and outdoor facilities such as a children’s play area, allotments and a community orchard are also proposed.
With the site located a short walk from village facilities including shops and the nearby primary school, the emerging plans also include the provision of car parking spaces for the use of the wider community, improving access to local facilities.
The consultation website has been launched to provide an overview of the proposals and an opportunity to submit feedback.
It can be viewed at www.bloorhomescoven.com with the consultation running until May 30, 2025.
The online consultation is also being complemented by a public drop-in exhibition where people will be able to view the proposals and speak to members of the project team.
It will take place at Coven Memorial Hall, Brewood Road on May 16 from 2pm until 6.45pm.
Max Whitehead, Planning Director at Bloor Homes said: “We are very pleased to have launched our consultation on our emerging outline proposals for high-quality homes and public open spaces in Coven.
"The site is a highly sustainable location for a new neighbourhood within the village, a short walk from the school, pub and shops.
“We have initiated discussions with the local NHS Integrated Care Board to explore the potential for our proposals to assist with the re-establishment of GP surgery services that were previously provided at Coven Memorial Hall but recently withdrawn.
"Our plans will also provide contributions to expanding local education provision as required.
“We are really keen to hear from local people, including their priorities for the types of homes needed locally and would like to encourage people to visit the new consultation website or drop-in to the exhibition ."





